102自然與生活科技-防災教育教學模組設計
學習領域 | 自然與生活科技 | 單元名稱 | 火災防治 | |
教學對象 | 國二學生 | 教學節數 | 2節 | |
教學設計 | 林兆駿 | |||
教 學 研 究 分 析 | 防災 素養 指標 | 【防災知識】-防災認知、防備知識、應變知識 C1 能舉出常見災害的類型。 C3 能知道各種災害發生的現象與主要原因。 C4 能了解災害對於人類生命、生活環境所造成的影響。 C5 能舉例災害預防的準備工作。 C6 能區別各項災害的防範措施。 C7 具備災害發生時的求生知識。 【防災態度】-防災警覺性、價值觀、責任感 C8 能列舉災害發生尋求協助的管道。 C9 能察(警)覺所處生活環境的潛在危險或不安全之處。 C10 能知道做好防災工作能減少災害造成的損失與傷亡。 C11 能明白避免災害是尊重他人和自身的生命意義。 C12 能體認自己有責任協助作好部分的防災工作。 C14 能在災害發生時(後),能關懷、照料同伴及家人。 C15 能在災害發生時(後),運用適當的途徑(如1991留言平台 等)告知家人近況。 【防災技能】-準備行動、應變行為 C16 能依據師長指導及防災訊息,協助防災準備工作。 C18 能在災害發生後主動尋求協助。 | ||
學生 學習 目標 | 1. 了解火災危害對人體所造成的傷害及影響。 2. 建立學生正確的防災知識與概念。 3. 透過對火災事件的了解提高學生的防火意識。 4. 辨認火災發生的原因,並知道如何預防事故的發生。 5. 了解火災中各種逃生自救的辦法,提高自救意識與能力。 6. 能覺察注意不同的逃生動線,做好逃生對策。 7. 能評估火災危險情境的處理方法。 8. 讓學生熟練逃生的動作。 9. 認識各種消防設備,牢記滅火方法。 10. 能正確操作滅火器。 | |||
教學 使用 資源 |
| |||
教 學 活 動 流 程 |
| |||
教 學 建 議 | ||||
火之焰教案 | ||||
素養指標 | 教學活動 | 時間 | 教學資源 | 備註 |
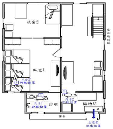
主題一:挖災挖災 一、介紹火災種類: 1.認識災害的種類:主要由可燃物的不同來分類 A 類火災:木材紙類,棉布類等固體物品.普通可燃物.(可使用乾粉滅火器及水來滅火) B 類火災:油脂化學品 瓦斯類等易燃液體.石油類等火災(可使用乾粉滅火器,不可用水來滅火) C 類火災:電器類及含有電流之物體等電器用品火災. (可使用乾粉滅火器,不可用水來滅火) D 類火災:鋁..鋰..鈉..鉀…等禁水性物質及鎂…鋯..等可燃性金屬物質引起之火災(非常少見,不可用水來滅火)。 二ヽ挖災挖災-認識我們的環境:居家電器危險與火災成因。 A、介紹火災案例分組討論:毛利小五郎活動。 1.利用真實案例讓學生找出相同之處:死者皆在浴室 實例一: 一、報案時間:102年01月16日05時33分 二、發生地點:臺南市永康區龍潭街 三、傷亡情形:2死(2女性,約14及16歲)
實例二: 一、報案時間:102年1月24日23時32分 二、發生地點:基隆市暖暖區水源路 三、傷亡情形:3死(2男性,43歲及14歲;1女性,41歲)
Bヽ說明火災發生時對人的危害作用: @火焰:燒傷可能因火焰之直接接觸及熱輻射引起。 @熱:對於呼吸而言,超過66℃﹝150℉﹞之溫度便難以忍受,此溫度領域可能會使消防人員救援及室內人員逃生遲緩。 @毒性氣體:這些氣體之毒害性成分基本上可分為三類: @煙:煙之定義為”材料發生燃燒或熱分解時所釋放出散播於空氣中之固態,液態微粒及氣體”。 @結構強度衰減:因熱害﹝Heat damage﹞火燒造成建築物之結構組件破壞具有明顯潛在危險性。 主題二:”火”熊厲害(台語) Aヽ火之預防: ◎ 針對「如何才能避免發生居家火災」的議題, 1.安全的使用用電設備 2.完成「居家消防安全診斷圖」,DIY「火災逃生包」:應包含基本緊急物品:防高溫眼罩、高頻率哨子、手電筒、電池、礦泉水、小毛巾、手套。 3.乾粉滅火器的使用及擺放位置。 4.製作並演練「家庭安全逃生地圖」:依據「居家消防安全診斷圖」安排至少兩條逃生路線並加強練習。 5.練習報案技巧:地點ヽ樓層ヽ受困人數。 6.安置住宅型火警警報器安裝. Bヽ火大啦:針對宜蘭地區住宅形式:農舍、集合住宅 若發生火災,立即應變並能安全逃生至安全地方? (讓學生對火災發生時的應變有正確的觀念。) (1)使用滅火器的時機:如何清理火線。 (2)叫醒家中所有的人並撥打電話119 消防單位,請求 救援。 (3)以濕毛巾摀住口並以防高溫眼罩保護眼鼻。 (4)濃煙中採低姿勢行走,依「家庭安全逃生地圖」至 逃生集合地點。 (5)房門關緊以衣物塞住門縫,不讓濃煙侵入。 (6)到容易獲救地方,如:陽台、窗等容易獲救的地點 等待救援。 (7)受困屋內使用高頻口哨增加搜救機會。 主題三:就愛冰火實驗-簡易滅火器製作 國二理化酸鹼反應:小蘇打粉+檸檬酸—>二氧化碳 材料:寶特瓶ヽ吸管ヽ原子筆頭ヽ黏土ヽ膠帶ヽ剪刀ヽ橡皮管 操作:
|
20
25
20
25
|
自製PPT檔 提問法
PPT檔 分組討論 自製學習單
自製PPT檔 提問法
自製PPT檔 分組操作
| ||
參 考 資 料
內政部消防署 http://www.nfa.gov.tw/
內政部消防署防災
知識網
http://www.nfa.gov.tw/main/Unit.aspx?ID=&MenuID=507&ListID=279







































